Waterstraat 16a
5301 AJ Zaltbommel
€ 1.085.000,- k.k.
135 m2 woonoppervlakte
230 m2 perceel
4 kamers
1750
Beschrijving
Wonen en werken in stijl – uniek object in hartje Zaltbommel
In het levendige hart van het sfeervolle vestingstadje Zaltbommel staat een bijzonder object te koop: een diep, karaktervol winkelpand met een exclusieve, hoogwaardig afgewerkte bovenwoning. Een zeldzame kans voor wie op zoek is naar de perfecte balans tussen zakelijk succes en stijlvol, comfortabel wonen.
Een winkelruimte met impact
Gelegen aan een drukbezochte winkelstraat, omringd door historische panden en sfeervolle terrassen, biedt de winkelruimte op de begane grond volop commerciële mogelijkheden. De royale indeling en uitstekende zichtbaarheid maken dit pand ideaal voor een hoogwaardige retailfunctie of representatieve bedrijfsruimte. De diepte van het pand biedt flexibiliteit in inrichting en gebruik – een perfecte plek om je onderneming letterlijk en figuurlijk in de spotlights te zetten.
Luxe bovenwoning met uitzicht op historie
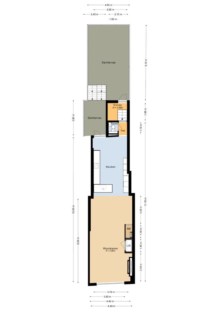
Via een eigen entree met lift bereik je de bovenwoning, die is ontworpen met oog voor stijl, comfort en licht. De eerste verdieping verrast met een royale, lichte living met een levendig uitzicht op de winkelstraat en markt. Aan de achterzijde bevindt zich een moderne keuken, strak vormgegeven en compleet uitgerust met hoogwaardige inbouwapparatuur. Grenzend aan de keuken vind je het zonnige dakterras: een beschutte, groene oase van rust midden in de stad, met fraai uitzicht op de karakteristieke toren van de Gasthuiskapel.
Comfort en rust op de bovenste verdieping
De tweede verdieping vormt een privéverblijf waar rust en luxe samenkomen. De riante master bedroom en de stijlvolle badkamer – voorzien van ligbad, inloopdouche, modern badkamermeubel en zelfs een sauna – zorgen voor een ultiem gevoel van wellness aan huis. Twee extra slaapkamers aan de voorzijde bieden ruimte voor gezin, werk of gasten.
Het pand is omstreeks 1750 gebouwd en in de loop der jaren verbouwd, vernieuwd en gemoderniseerd. De winkel heeft een bruto vloeroppervlakte van ca. 183 m² en de woonoppervlakte van de woning bedraagt ca. 135 m². Het pand heeft een totale inhoud van ca. 1.126 m³ en het geheel is gelegen op een perceel van 230 m².
Alles wat Zaltbommel te bieden heeft, ligt hier binnen handbereik. Stap zo het gezellige centrum in, met winkels, horeca en theater. Het stadskasteel, het park en de stadswallen zijn vlakbij voor een fijne wandeling of gewoon een momentje rust. Zaltbommel is een gezellig vestingstadje aan de Waal met veel bezienswaardigheden en activiteiten. De gemeente Zaltbommel beschikt over een ruim opleidingsaanbod; zo zijn er naast het basisonderwijs diverse vormen van buitengewoon en voortgezet onderwijs aanwezig. Tevens beschikt Zaltbommel over moderne sportaccommodaties zoals o.a. een overdekt zwembad, verschillende sportzalen, tennis-, padel-, voetbal- en hockeyvelden. Op het gebied van cultuur heeft Zaltbommel veel te bieden, waaronder een cultureel centrum met schouwburgzaal en muziekschool. Zaltbommel heeft een centrale ligging in Nederland, ligt direct aan de A2 en beschikt over een NS Station.
Indeling winkel:
De winkel beschikt over een overdekte entree met aan weerszijden etalages, wat zorgt voor een uitnodigende presentatie van de winkelruimte. Deze entree geeft toegang tot het diepe winkelpand, dat zich uitstrekt tot aan de achterzijde. Achterin bevindt zich een halfopen zitgedeelte, ideaal voor klantgesprekken of korte pauzes. Verder vind je hier praktische voorzieningen zoals opslagruimte, een keuken, een kantoorruimte, een werkplaats en een toilet.
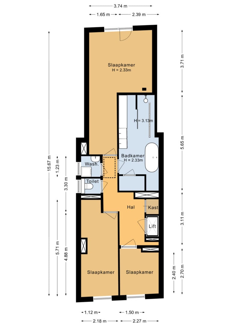
Indeling woning:
Entree: de woning is bereikbaar via een aparte entree die toegang biedt tot het portaal met liftinstallatie.
Eerste verdieping: bij het betreden van de eerste verdieping via de lift kom je direct binnen in de ruime, lichte living. Deze woonkamer is voorzien van een stijlvolle, ingebouwde elektrische haard en wordt gekenmerkt door een grote raampartij aan de voorzijde met uitzicht op het stadscentrum. De open keuken grenst aan de woonkamer en is uitgevoerd in een moderne L-opstelling, uitgerust met hoogwaardige inbouwapparatuur. Denk hierbij aan een Bora inductiekookplaat met geïntegreerde afzuiging, een Quooker, een oven en een vaatwasser. Vanuit de keuken is er directe toegang tot het dakterras. Daarnaast is er een tweede, lager gelegen dakterras. Dit terras is eveneens bereikbaar via een klein halletje grenzend aan de keuken, waar zich ook de toiletruimte bevindt.
Tweede verdieping: de lift brengt je naar de tweede verdieping, waar een ruime overloop toegang biedt tot diverse vertrekken. Aan de achterzijde bevindt zich de royale master bedroom. De luxe badkamer is uitgerust met een inloopdouche, een ligbad, een sauna, een badkamermeubel met dubbele wastafel en hoge ramen die zorgen voor een aangename natuurlijke lichtinval. Op de overloop bevindt zich tevens een separate toiletruimte en een praktische wasruimte. Aan de voorzijde van de woning zijn nog twee (slaap)kamers gesitueerd.
Bergzolder: via een vlizotrap is de bergzolder bereikbaar, ideaal voor extra opslagruimte.
Dit uitzonderlijke pand combineert een unieke locatie met een hoogwaardige afwerking en veelzijdige mogelijkheden. Hier smelten wonen en werken samen tot een harmonieus geheel, omgeven door historie, sfeer en comfort. Voor wie op zoek is naar iets bijzonders, is dit een kans die zelden voorbij komt.
Kenmerken
Overdracht
| VRAAGPRIJS | € 1.085.000,- k.k. |
| Status | Onder bod |
| Aanvaarding | In overleg |
Adres
| Straatnaam | Waterstraat |
| Huisnummer | 16 |
| Postcode | 5301 AJ |
| Woonplaats | Zaltbommel |
| Land | Nederland |
Maten en ligging
| Liggingen | In centrum |
| Inhoud | 528 m3 |
| Gebruiksoppervlakte woonfunctie | 135 m2 |
| Gebruiksoppervlakte overige functies | 18 m2 |
| Perceel oppervlakte | 230 m2 |
Overig
| Bouwvorm | Bestaande bouw |
Bestemming
| Huidig gebruik | Woonruimte |
| Huidige bestemming | Woonruimte |
| Permanente bewoning | Ja |
| Recreatiewoning | Nee |
Bouwjaar
| Jaar omschrijving | 1750 |
| In aanbouw | Nee |
Onderhoud
| Binnen | Uitstekend |
| Buiten | Uitstekend |
Diversen
| Isolatievormen | Muurisolatie, Vloerisolatie, Dubbelglas, HR glas |
| Dak | Pannen |
Installatie
| Soorten verwarming | CV ketel, Vloerverwarming geheel |
| Soorten warm water | CV ketel |
Tuin
| Tuintypen | Zonneterras |
| Kwaliteit | Normaal |
Hoofdtuin
| Type | Zonneterras |
| Achterom | Ja |
Garage
| Soorten | Geen garage |
Appartement
| Soort appartement | Bovenwoning |
Verdiepingen
| Aantal kamers | 4 |
| Aantal slaapkamers | 3 |
Downloads
Ligging
Voorzieningen
Tankstation
0.2 km
Supermarkt
0.5 km
Bushalte
0.7 km
School
0.7 km
Treinstation
1.2 km
Bibliotheek
1.6 km
Deze afstanden zijn berekend in vogelvlucht. De werkelijke routes en afstanden kunnen afwijken.
Interesse? Laat het ons weten
Neem contact op
Moolenaar Makelaardij staat bekend om de persoonlijke benadering en duidelijke afspraken die we met onze cliënten maken. We zijn niet snel tevreden en gaan tot het uiterste om optimaal aan uw woonwensen en -mogelijkheden te voldoen.