Kazemat 66
5301 JE Zaltbommel
Verkocht
180 m2 woonoppervlakte
213 m2 perceel
7 kamers
1996
Energielabel
ABeschrijving
Ruimte, licht en comfort in een instapklare woning!
Op zoek naar een royale en moderne woning met volop leefruimte? Deze goed onderhouden tussenwoning in de geliefde wijk ‘de Spellewaard’ heeft het allemaal! Met maar liefst zes slaapkamers, een zonnige tuin, een dakterras en een stijlvolle afwerking is dit de perfecte plek om thuis te komen.
De lichte en ruime woonkamer vormt het hart van de woning. Dankzij de grote raampartijen en de openslaande deuren naar de fraai aangelegde achtertuin met sfeervolle overkapping geniet je hier volop van het daglicht en het buitenleven.
Aan de voorzijde biedt de moderne dichte keuken een vrij uitzicht op de autoluwe straat en het groene Esplanadepark.
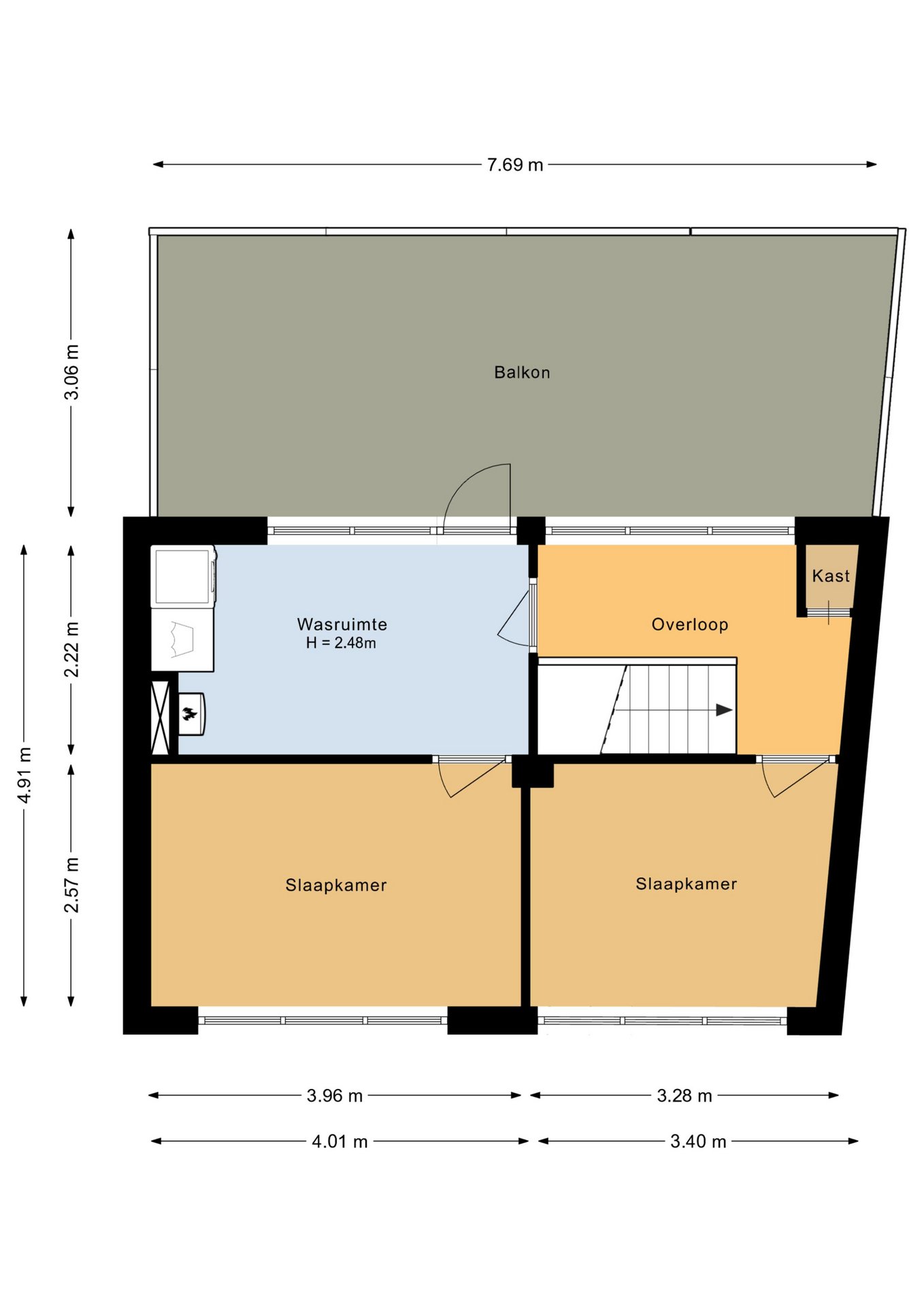
Op de eerste verdieping vind je vier ruime slaapkamers en een moderne badkamer. De tweede verdieping verrast met nog eens twee slaapkamers en een royale waskamer met toegang tot het dakterras – dé plek om in alle rust te ontspannen.
Met een woonoppervlakte van ca. 180 m² en een inhoud van ca. 590 m³ biedt deze woning verrassend veel ruimte. Gebouwd in 1996 en gelegen op een perceel van 213 m², combineert het comfort en de solide bouwkwaliteit van een moderne woning met een fijne woonomgeving.
De woning is gelegen op een perfecte locatie in de directe omgeving van een kleinschalig winkelcentrum, diverse scholen, kinderdagverblijf, kinderboerderij en het Esplanade Park met grote speeltuin.
De gemoedelijke en kindvriendelijke wijk ‘de Spellewaard’ is gunstig gelegen op korte afstand van de gezellige Bommelse binnenstad met diverse winkels, restaurants, terrassen en cultureel centrum met schouwburgzaal. Tevens beschikt Zaltbommel over moderne sportaccommodaties, waaronder een overdekt zwembad, verschillende sportzalen, tennis-, voetbal- en hockeyvelden. Het gezellige vestingstadje Zaltbommel is centraal gelegen aan de A2 en beschikt over een NS-station.
Indeling woning: de entree geeft toegang tot de hal, waar je de toiletruimte, meterkast, garderobe en trapopgang naar de eerste verdieping vindt. Vanuit de hal bereik je tevens de berging. Vervolgens stap je de tuingerichte woonkamer binnen, een fijne en lichte leefruimte met een loopdeur en openslaande tuindeuren naar de achtertuin.
Aan de voorzijde van de woning bevindt zich de moderne keuken, die is uitgerust met een L-vormig keukenblok en diverse inbouwapparatuur, waaronder een inductiekookplaat, afzuigkap, dubbele spoelbak, combi-oven, koel-vriescombinatie en vaatwasser.
Eerste verdieping: op de eerste verdieping leidt de overloop naar vier ruime slaapkamers en een complete badkamer, voorzien van een inloopdouche, ligbad, badkamermeubel met dubbele wastafel en toilet.
Tweede verdieping: de tweede verdieping biedt nog eens twee slaapkamers, een praktische wasruimte met c.v.-installatie en witgoedaansluitingen, en een loopdeur naar het royale dakterras van 24 m².
Kortom, een instapklare woning met verrassend veel ruimte en een geweldige ligging!
Kenmerken
Overdracht
| Status | Verkocht |
| Aanvaarding | In overleg |
Adres
| Straatnaam | Kazemat |
| Huisnummer | 66 |
| Postcode | 5301 JE |
| Woonplaats | Zaltbommel |
| Land | Nederland |
Maten en ligging
| Liggingen | Aan park, Aan rustige weg, In woonwijk, Vrij uitzicht |
| Inhoud | 590 m3 |
| Gebruiksoppervlakte woonfunctie | 180 m2 |
| Gebruiksoppervlakte overige functies | 0 m2 |
| Perceel oppervlakte | 213 m2 |
Overig
| Bouwvorm | Bestaande bouw |
Bestemming
| Huidig gebruik | Woonruimte |
| Huidige bestemming | Woonruimte |
| Permanente bewoning | Ja |
| Recreatiewoning | Nee |
Bouwjaar
| Jaar omschrijving | 1996 |
| In aanbouw | Nee |
Onderhoud
| Binnen | Goed |
| Buiten | Goed |
Diversen
| Isolatievormen | Muurisolatie, Dubbelglas, HR glas |
Installatie
| Soorten verwarming | CV ketel |
Tuin
| Tuintypen | Achtertuin, Voortuin |
| Kwaliteit | Verzorgd |
Hoofdtuin
| Type | Achtertuin |
| Achterom | Ja |
Garage
| Soorten | Garage mogelijk, Geen garage |
Woonhuis
| Soort woning | Eengezinswoning |
Verdiepingen
| Aantal kamers | 7 |
| Aantal slaapkamers | 6 |
Downloads
Ligging
Voorzieningen
Bushalte
0.2 km
Bibliotheek
0.2 km
School
0.3 km
Tankstation
0.4 km
Supermarkt
1 km
Treinstation
2 km
Deze afstanden zijn berekend in vogelvlucht. De werkelijke routes en afstanden kunnen afwijken.
Interesse? Laat het ons weten
Neem contact op
Moolenaar Makelaardij staat bekend om de persoonlijke benadering en duidelijke afspraken die we met onze cliënten maken. We zijn niet snel tevreden en gaan tot het uiterste om optimaal aan uw woonwensen en -mogelijkheden te voldoen.