de Laeck 16c
5301 BA Zaltbommel
Verkocht
105 m2 woonoppervlakte
27 m2 perceel
3 kamers
2003
Energielabel
ABeschrijving
Een verborgen parel in hartje Zaltbommel: deze hoogwaardig afgewerkte maisonnette met twee verdiepingen, zonnig balkon én ruime garagebox combineert stijlvol wonen met ultiem comfort. Rustig gelegen aan een charmant hofje, maar met alle levendigheid van het historische centrum – boetiekjes, restaurants, terrasjes en het theater – letterlijk om de hoek.
Drie jaar geleden is de woning tot in de puntjes gerenoveerd. Daarbij is gekozen voor luxe materialen, een verfijnde afwerking en moderne gemakken. De ruime woonkamer op de eerste verdieping is licht en uitnodigend, met direct daarnaast een sfeervol balkon op het zuidwesten, bereikbaar via de hal – een perfecte plek om te genieten van de middagzon. De vloer is bekleed met een massief eiken vloer in visgraatmotief. De luxe eikenhouten hoekkeuken is volledig uitgerust met hoogwaardige inbouwapparatuur en vormt een stijlvol hart van het huis.
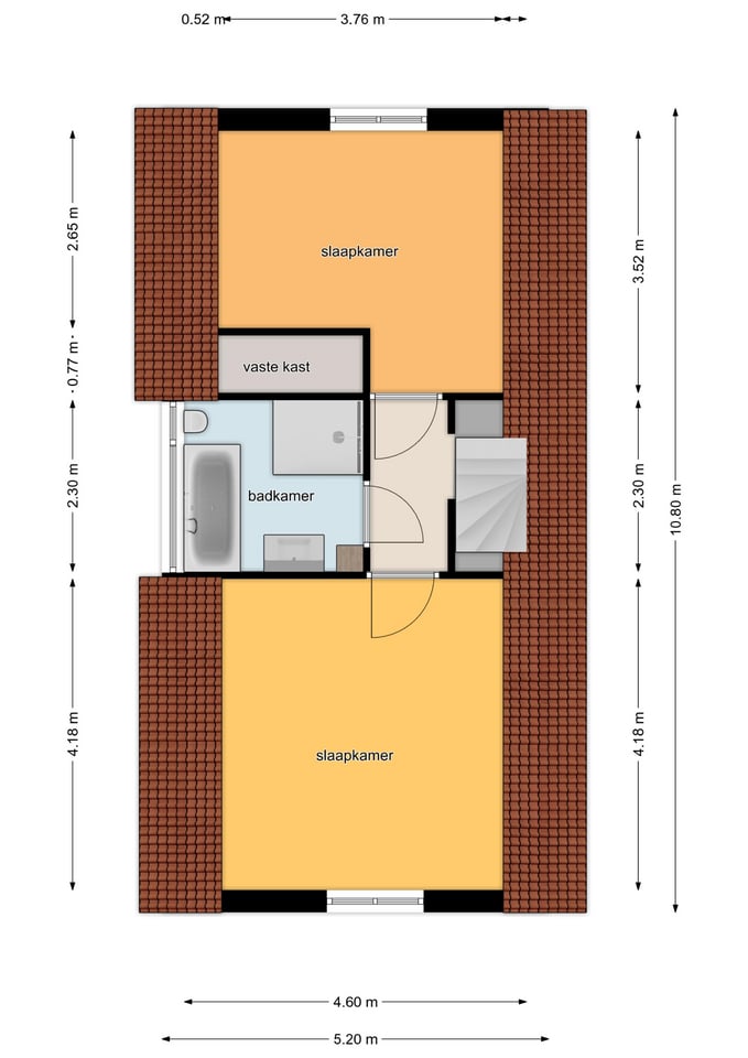
De badkamer is een eyecatcher op zich: dankzij de royale dakkapel is hier een zee van licht en ruimte ontstaan. Ook de twee ruime slaapkamers, gelegen op de tweede verdieping, ademen rust en kwaliteit. Eén van de kamers is voorzien van een maatwerk kastenwand. En dankzij de airco blijft het hier ook in de zomer heerlijk koel.
Een instapklare woning waar werkelijk aan alles is gedacht. Van esthetiek tot comfort – dit is wonen op hoog niveau, op een plek die zelden te koop komt.
De maisonnette is in 2003 gebouwd en heeft een woonoppervlakte van ca. 105 m². De inhoud bedraagt ca. 250 m³. Bij de de woning hoort een ruime garagebox, voorzien van elektra en uitgerust met een zolder voor extra opslagruimte.
Alles wat Zaltbommel te bieden heeft, ligt hier binnen handbereik. De woning ligt midden in het gezellige centrum met winkels, theater en horeca op steenworpafstand. Het stadskasteel, het park en de stadswallen zijn vlakbij voor een fijne wandeling of gewoon een momentje rust. Zaltbommel is een gezellig vestingstadje aan de Waal met veel bezienswaardigheden en activiteiten. De gemeente Zaltbommel beschikt over een ruim opleidingsaanbod; zo zijn er naast het basisonderwijs diverse vormen van buitengewoon en voortgezet onderwijs aanwezig. Tevens beschikt Zaltbommel over moderne sportaccommodaties zoals o.a. een overdekt zwembad, verschillende sportzalen, tennis-, padel-, voetbal- en hockeyvelden. Op het gebied van cultuur heeft Zaltbommel veel te bieden, waaronder een cultureel centrum met schouwburgzaal en muziekschool. Zaltbommel heeft een centrale ligging in Nederland, ligt direct aan de A2 en beschikt over een NS Station.
De indeling is als volgt:
Via de eigen entree op de begane grond bereik je de trapopgang naar de eerste verdieping.
Eerste verdieping: op de eerste verdieping kom je binnen in een royale hal met garderobe, die toegang geeft tot het balkon, de toiletruimte en de ruime, lichte woonkamer. De woonkamer is gesitueerd aan de voorzijde en biedt een fijne leefruimte met zicht op het rustige hofje. Aan de achterzijde bevindt zich de luxe open keuken in een fraaie eikenhouten hoekopstelling. Deze is voorzien van high end inbouwapparatuur, waaronder een inductiekookplaat met werkbladafzuiging, koelkast, aparte viezer, combi-stoomoven, Quooker én een wijnklimaatkast. Dankzij de ruime opzet is er volop plaats voor een grote eettafel. Een praktische inbouwkast biedt extra bergruimte en herbergt onder meer de cv-installatie. Vanuit de keuken kijk je bovendien prachtig uit op het karakteristieke Stadskasteel.
Tweede verdieping: een vaste trap leidt naar de tweede verdieping, waar je via de overloop toegang hebt tot twee volwaardige slaapkamers. Eén van de kamers beschikt over een vaste kast, de andere over een stijlvolle, op maat gemaakte kastenwand. De moderne badkamer is dankzij een royale dakkapel uitzonderlijk licht en ruim. Hier vind je een ligbad met jets, inloopdouche, wastafelmeubel, designradiator, een urinoir en speakers in het plafond.
Kenmerken
Overdracht
| Status | Verkocht |
| Aanvaarding | In overleg |
Adres
| Straatnaam | de Laeck |
| Huisnummer | 16 |
| Postcode | 5301 BA |
| Woonplaats | Zaltbommel |
| Land | Nederland |
Maten en ligging
| Liggingen | Aan rustige weg, In centrum |
| Inhoud | 250 m3 |
| Gebruiksoppervlakte woonfunctie | 105 m2 |
| Gebruiksoppervlakte overige functies | 0 m2 |
| Perceel oppervlakte | 27 m2 |
Overig
| Bouwvorm | Bestaande bouw |
Bestemming
| Huidig gebruik | Woonruimte |
| Huidige bestemming | Woonruimte |
| Permanente bewoning | Ja |
| Recreatiewoning | Nee |
Bouwjaar
| Jaar omschrijving | 2003 |
| In aanbouw | Nee |
Onderhoud
| Binnen | Goed tot uitstekend |
| Buiten | Goed tot uitstekend |
Diversen
| Dak | Pannen |
Installatie
| Soorten warm water | CV ketel |
Tuin
Hoofdtuin
| Achterom | Ja |
Garage
| Soorten | Garagebox |
| Voorzieningen | Elektra, Vliering, Elektrische deur |
| Capaciteit | 1 |
Appartement
| Soort appartement | Maisonnette |
Verdiepingen
| Aantal kamers | 3 |
| Aantal slaapkamers | 2 |
Downloads
Ligging
Voorzieningen
School
0.2 km
Supermarkt
0.4 km
Bushalte
0.5 km
Tankstation
0.5 km
Treinstation
1.1 km
Bibliotheek
1.4 km
Deze afstanden zijn berekend in vogelvlucht. De werkelijke routes en afstanden kunnen afwijken.
Interesse? Laat het ons weten
Neem contact op
Moolenaar Makelaardij staat bekend om de persoonlijke benadering en duidelijke afspraken die we met onze cliënten maken. We zijn niet snel tevreden en gaan tot het uiterste om optimaal aan uw woonwensen en -mogelijkheden te voldoen.