Citadel 87
5301 JH Zaltbommel
€ 595.000,- k.k.
150 m2 woonoppervlakte
185 m2 perceel
7 kamers
1995
Energielabel
BBeschrijving
In de gewilde wijk ‘De Spellewaard’ staat dit modern vormgegeven herenhuis – een woning waar ruimte, licht en afwerking perfect in balans zijn. Citadel 87 is eigentijds, tot in detail verzorgd en helemaal klaar voor zijn nieuwe bewoners.
De begane grond maakt direct indruk met de fraaie PVC-vloer in visgraatmotief en de strakke keuken aan de voorzijde, voorzien van moderne inbouwapparatuur en veel werkruimte. Aan de achterzijde bevindt zich de lichte, tuingerichte woonkamer, waar de grote raampartij zorgt voor een zee aan daglicht. De loopdeur naar de tuin verbindt binnen moeiteloos met buiten. Aan de voorzijde is een afsluitbare speelkamer, bereikbaar via een stijlvolle schuifdeur – ideaal voor gezinnen met kinderen, maar ook uitstekend te gebruiken als thuiswerkplek, eetkamer of hobbyruimte.
Op de eerste verdieping vind je vier comfortabele slaapkamers en een strakke badkamer met moderne afwerking. De tweede verdieping biedt een vijfde slaapkamer én toegang tot een zonnig balkon/dakterras, waar je heerlijk kunt genieten van de ochtendzon of een rustige avond met uitzicht over de wijk.
De onderhoudsvriendelijke achtertuin ligt op het noordoosten, biedt volop privacy en beschikt over een berging en achterom. Met een woonoppervlakte van circa 150 m² is Citadel 87 meer dan instapklaar – een woning waar alles klopt.
De woning is gelegen op een perfecte locatie in de directe omgeving van een kleinschalig winkelcentrum, diverse scholen, kinderdagverblijf, kinderboerderij en het Esplanade Park met grote speeltuin. De gemoedelijke en kindvriendelijke wijk ‘de Spellewaard’ is gunstig gelegen op korte afstand van de gezellige Bommelse binnenstad met diverse winkels, restaurants, terrassen en cultureel centrum met schouwburgzaal. Tevens beschikt Zaltbommel over moderne sportaccommodaties, waaronder een overdekt zwembad, verschillende sportzalen, tennis-, voetbal- en hockeyvelden. Het gezellige vestingstadje Zaltbommel is centraal gelegen aan de A2 en beschikt over een NS-station.
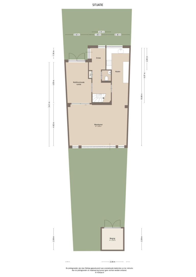
Indeling woonhuis: je komt binnen in een ruime hal met garderobe, meterkast, modern toilet en trap naar de eerste verdieping. De hal geeft toegang tot de lichte, tuingerichte woonkamer met grote raampartij en veel daglicht. Aan de voorzijde bevindt zich de halfopen, moderne keuken met hoekopstelling en vaste kastenwand, voorzien van hoogwaardige inbouwapparatuur zoals inductiekookplaat, afzuigkap, combi-oven, koel-vriescombinatie, vaatwasser, koffiezetapparaat en stoomoven. Daarnaast is er een multifunctionele kamer aan de voorzijde, momenteel in gebruik als speelkamer, maar ideaal als eetkamer, kantoor of hobbyruimte.
Eerste verdieping: de overloop leidt naar vier comfortabele slaapkamers en een moderne badkamer met inloopdouche, wandcloset en dubbel wastafelmeubel. De masterbedroom beschikt over een vaste kast.
Tweede verdieping: op de tweede verdieping bevindt zich de vijfde slaapkamer met toegang tot een zonnig balkon/dakterras. Tevens is hier de technische ruimte met witgoedaansluitingen en CV-installatie.
Highlights:
• modern vormgegeven herenhuis met stijlvolle afwerking;
• eigen oprit;
• circa 150 m² woonoppervlakte, 5 slaapkamers;
• lichte, tuingerichte woonkamer;
• afsluitbare kamer aan de voorzijde (speelkamer / eetkamer / werkruimte);
• strakke keuken (2023) met moderne inbouwapparatuur;
• moderne & stijlvolle badkamer;
• vloerverwarming op de begane grond;
• zonnig balkon/dakterras op de tweede verdieping;
• onderhoudsvriendelijke achtertuin op het noordoosten, met berging en achterom;
• 7 zonnepanelen, energielabel B;
• instapklaar, direct te betrekken!
Kenmerken
Overdracht
| VRAAGPRIJS | € 595.000,- k.k. |
| Status | Beschikbaar |
| Aanvaarding | In overleg |
Adres
| Straatnaam | Citadel |
| Huisnummer | 87 |
| Postcode | 5301 JH |
| Woonplaats | Zaltbommel |
| Land | Nederland |
Maten en ligging
| Liggingen | In woonwijk |
| Inhoud | 495 m3 |
| Gebruiksoppervlakte woonfunctie | 150 m2 |
| Gebruiksoppervlakte overige functies | 0 m2 |
| Perceel oppervlakte | 185 m2 |
Overig
| Bouwvorm | Bestaande bouw |
Bestemming
| Huidig gebruik | Woonruimte |
| Huidige bestemming | Woonruimte |
| Permanente bewoning | Ja |
| Recreatiewoning | Nee |
Bouwjaar
| Jaar omschrijving | 1995 |
| In aanbouw | Nee |
Onderhoud
| Binnen | Goed tot uitstekend |
| Buiten | Goed tot uitstekend |
Diversen
| Isolatievormen | Volledig geïsoleerd |
Installatie
| Soorten verwarming | CV ketel, Vloerverwarming gedeeltelijk |
Tuin
| Tuintypen | Achtertuin, Voortuin |
| Kwaliteit | Verzorgd |
Hoofdtuin
| Type | Achtertuin |
| Achterom | Ja |
Garage
| Soorten | Geen garage |
Woonhuis
| Soort woning | Herenhuis |
Verdiepingen
| Aantal kamers | 7 |
| Aantal slaapkamers | 5 |
Downloads
Ligging
Voorzieningen
Bushalte
0.2 km
Bibliotheek
0.2 km
School
0.3 km
Tankstation
0.4 km
Supermarkt
1 km
Treinstation
2 km
Deze afstanden zijn berekend in vogelvlucht. De werkelijke routes en afstanden kunnen afwijken.
Interesse? Laat het ons weten
Neem contact op
Moolenaar Makelaardij staat bekend om de persoonlijke benadering en duidelijke afspraken die we met onze cliënten maken. We zijn niet snel tevreden en gaan tot het uiterste om optimaal aan uw woonwensen en -mogelijkheden te voldoen.