Citadel 46
5301 JN Zaltbommel
Verkocht
109 m2 woonoppervlakte
133 m2 perceel
4 kamers
1994
Energielabel
BBeschrijving
Modern, licht en volop ruimte!
Deze eigentijdse middenwoning met berging en zonnige tuin op het westen biedt alles wat je zoekt in een fijn thuis. Gelegen in een rustige, kindvriendelijke woonwijk geniet je hier van comfort én gemak.
De voor- en achtertuin zijn stijlvol én onderhoudsvriendelijk aangelegd met sierbestrating en groenaccenten. Achterin de tuin vind je een praktische houten berging en via de achterom sta je zo weer buiten de poort. Binnen wacht een verrassend ruime indeling: een lichte, tuingerichte woonkamer, drie royale slaapkamers en de mogelijkheid om op zolder eenvoudig een vierde kamer te realiseren.
De woning is gelegen op een perfecte locatie in de directe omgeving van een kleinschalig winkelcentrum, diverse scholen, kinderdagverblijf, kinderboerderij en het Esplanade Park met grote speeltuin. De gemoedelijke en kindvriendelijke wijk ‘de Spellewaard’ is gunstig gelegen op korte afstand van de gezellige Bommelse binnenstad met diverse winkels, restaurants, terrassen en cultureel centrum met schouwburgzaal. Tevens beschikt Zaltbommel over moderne sportaccommodaties, waaronder een overdekt zwembad, verschillende sportzalen, tennis-, voetbal-, padel- en hockeyvelden. Het gezellige vestingstadje Zaltbommel is centraal gelegen aan de A2 en beschikt over een NS-station.
De woning is gebouwd in 1994 en heeft een inhoud van ca. 374 m³. De woonoppervlakte bedraagt ca. 109 m² en het geheel is gelegen op een perceel van 133 m².
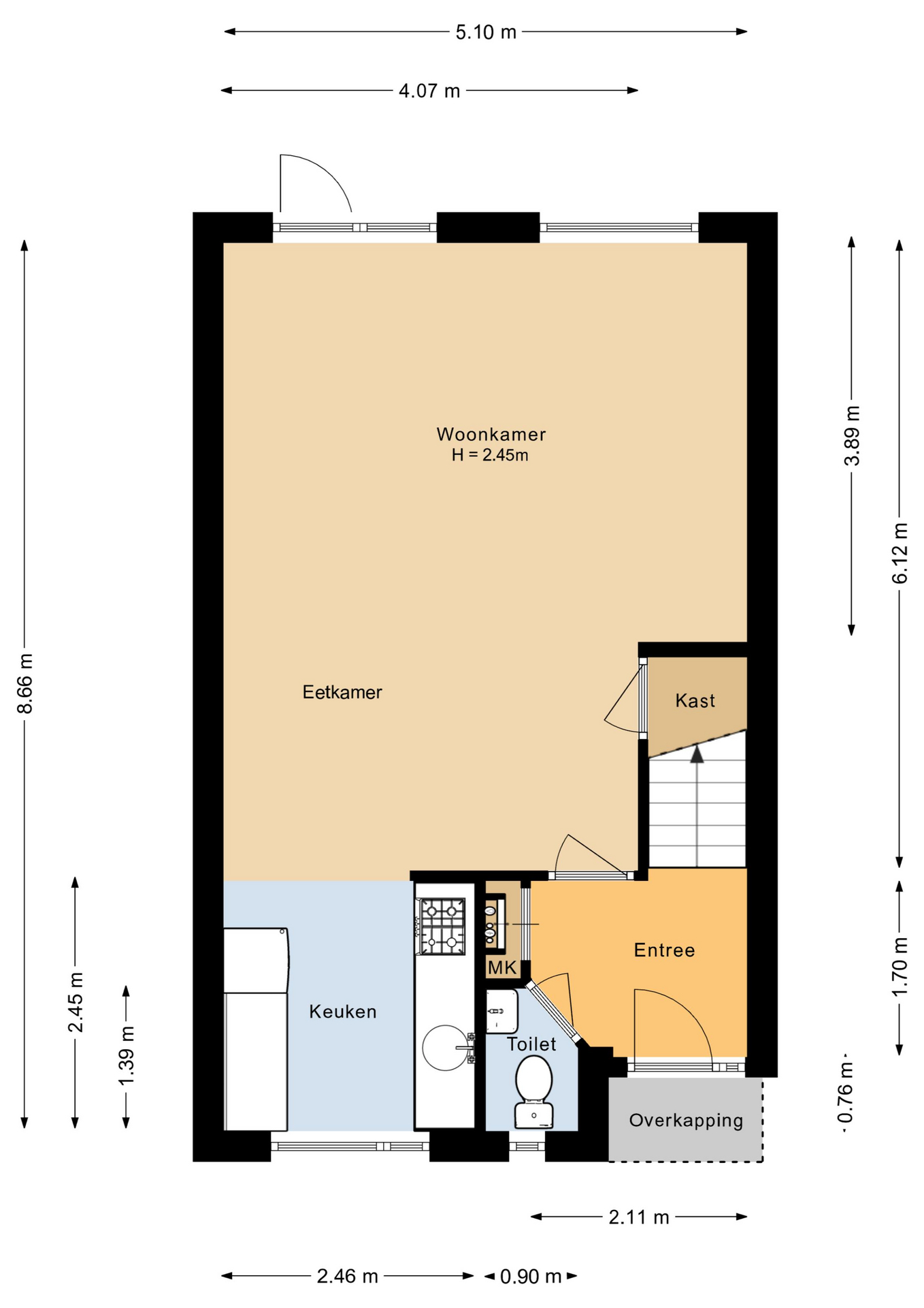
Indeling woning: bij binnenkomst kom je in de hal met garderobe, meterkast, toiletruimte en de trapopgang naar de eerste verdieping. Vanuit hier bereik je de ruime, tuingerichte woonkamer met handige trapkast/proviandkast. Aan de voorzijde bevindt zich de open woonkeuken, uitgerust met een moderne keukenopstelling.
Eerste verdieping: op de eerste verdieping leidt de overloop naar drie goed bemeten slaapkamers en een complete badkamer met wastafel, douchecabine, ligbad en toilet.
Tweede verdieping: de tweede verdieping biedt een royale zolderverdieping met volop mogelijkheden. Hier kan eenvoudig een vierde slaapkamer worden gerealiseerd; de benodigde aansluitingen zijn al aanwezig.
Deze woning biedt alles wat je zoekt – ruimte, comfort en een fijne ligging in een kindvriendelijke wijk. Met de zonnige tuin, de lichte woonkamer en de mogelijkheid voor een extra slaapkamer op zolder, is dit het ideale thuis voor het hele gezin. Benieuwd of dit jouw nieuwe woning wordt? Plan dan snel een bezichtiging en laat je verrassen!
Kenmerken
Overdracht
| Status | Verkocht |
| Aanvaarding | In overleg |
Adres
| Straatnaam | Citadel |
| Huisnummer | 46 |
| Postcode | 5301 JN |
| Woonplaats | Zaltbommel |
| Land | Nederland |
Maten en ligging
| Liggingen | In woonwijk |
| Inhoud | 374 m3 |
| Gebruiksoppervlakte woonfunctie | 109 m2 |
| Gebruiksoppervlakte overige functies | 0 m2 |
| Perceel oppervlakte | 133 m2 |
Overig
| Bouwvorm | Bestaande bouw |
Bestemming
| Huidig gebruik | Woonruimte |
| Huidige bestemming | Woonruimte |
| Permanente bewoning | Ja |
| Recreatiewoning | Nee |
Bouwjaar
| Jaar omschrijving | 1994 |
| In aanbouw | Nee |
Onderhoud
| Binnen | Goed |
| Buiten | Goed |
Diversen
| Isolatievormen | Dakisolatie, Muurisolatie, Gedeeltelijk dubbelglas, HR glas |
| Dak | Pannen |
Installatie
| Soorten verwarming | CV ketel |
| Soorten warm water | CV ketel |
Tuin
| Tuintypen | Achtertuin, Voortuin |
| Kwaliteit | Normaal |
Hoofdtuin
| Type | Achtertuin |
| Achterom | Ja |
Garage
| Soorten | Geen garage |
Woonhuis
| Soort woning | Eengezinswoning |
Verdiepingen
| Aantal kamers | 4 |
| Aantal slaapkamers | 3 |
Downloads
Ligging
Voorzieningen
Bushalte
0.1 km
Bibliotheek
0.1 km
School
0.4 km
Tankstation
0.5 km
Supermarkt
1 km
Treinstation
2.1 km
Deze afstanden zijn berekend in vogelvlucht. De werkelijke routes en afstanden kunnen afwijken.
Interesse? Laat het ons weten
Neem contact op
Moolenaar Makelaardij staat bekend om de persoonlijke benadering en duidelijke afspraken die we met onze cliënten maken. We zijn niet snel tevreden en gaan tot het uiterste om optimaal aan uw woonwensen en -mogelijkheden te voldoen.