Boschstraat 48
5301 AG Zaltbommel
Verkocht
111 m2 woonoppervlakte
83 m2 perceel
4 kamers
Energielabel
CBeschrijving
Midden in de binnenstad van Zaltbommel staat deze karaktervolle stadswoning die het verleden stijlvol omarmt. Hoge balkenplafonds, glas-in-loodramen en originele details vertellen het verhaal van vroeger, terwijl een moderne afwerking en slimme indeling zorgen voor eigentijds wooncomfort.
De woning verrast direct bij binnenkomst met haar warme uitstraling en authentieke charme. In de woonkamer trekt de moderne schouw met houtgestookte haard de aandacht – een sfeervol middelpunt waar oud en nieuw elkaar moeiteloos versterken. De keuken combineert hoogwaardige materialen met een tijdloze uitstraling en vormt een elegant verlengstuk van de leefruimte. Op de verdieping bevindt zich een eigentijdse badkamer en zijn er drie slaapkamers, stuk voor stuk sfeervol en licht. Bovenop dit alles biedt de woning ook nog een zonnig dakterras: een uniek stukje buitenruimte midden in de stad. En de besloten binnenplaats op de begane grond is de perfecte plek voor een kop koffie in de ochtendzon.
Hoewel je je midden in het centrum bevindt, heerst hier binnen een aangename rust. De levendigheid van Zaltbommel ligt om de hoek, maar blijft precies waar je ‘m hebben wilt. Deze woning is karaktervol, doordacht gemoderniseerd en tot in detail verzorgd – ideaal voor wie houdt van sfeer, historie én comfort.
De woning is omstreeks 1900 gebouwd en in de loop der jaren verbouwd en gemoderniseerd. De woonoppervlakte bedraagt ca. 111 m². Het geheel is gelegen op een perceel van 83 m².
Alles wat Zaltbommel te bieden heeft, ligt hier binnen handbereik. De woning ligt midden in het gezellige centrum met winkels, theater en horeca op steenworpafstand. Het stadskasteel, het park en de stadswallen zijn vlakbij voor een fijne wandeling of gewoon een momentje rust. Zaltbommel is een gezellig vestingstadje aan de Waal met veel bezienswaardigheden en activiteiten. De gemeente Zaltbommel beschikt over een ruim opleidingsaanbod; zo zijn er naast het basisonderwijs diverse vormen van buitengewoon en voortgezet onderwijs aanwezig. Tevens beschikt Zaltbommel over moderne sportaccommodaties zoals o.a. een overdekt zwembad, verschillende sportzalen, tennis-, padel-, voetbal- en hockeyvelden. Op het gebied van cultuur heeft Zaltbommel veel te bieden, waaronder een cultureel centrum met schouwburgzaal en muziekschool. Zaltbommel heeft een centrale ligging in Nederland, ligt direct aan de A2 en beschikt over een NS Station.
Indeling woning: via de fraaie hardhouten voordeur met glas-in-lood bovenlicht stap je de hoge entreehal binnen met doorkijk naar de leefruimte. In de woonkamer zorgt het bijna drie meter hoge balkenplafond voor een ruimtelijk gevoel en zorgt aan de voorzijde de geluidswerende pui voor veel lichtinval. De living staat in open verbinding met de strak vormgegeven keuken, voorzien van L-vormige keukenunit met greeploze witte lades en hoogwaardige inbouwapparatuur. Grenzend aan de keuken bevindt zich de praktische bijkeuken met toiletruimte en vaste kastenwand. Hier zijn de witgoedaansluitingen en de CV-ketel netjes weggewerkt. Via een klassieke buitendeur met roedeverdeling stap je de besloten binnenplaats op, gunstig gelegen op het zuidwesten.
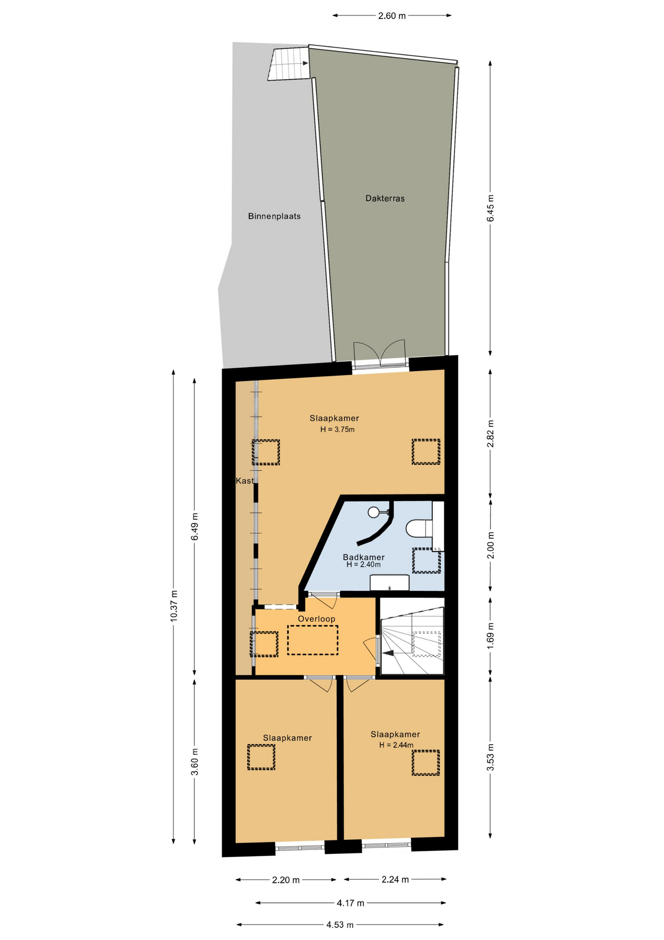
Eerste verdieping: de trapopgang in de woonkamer leidt naar de eerste verdieping. Hier geeft de overloop toegang tot een comfortabele badkamer en drie lichte slaapkamers. Aan de voorzijde zijn twee kamers gecreëerd, elk met karakteristieke glas-in-lood bovenlichten en Velux dakvensters die het ochtendlicht binnenlaten. De slaapkamer aan de achterzijde beschikt over ingebouwde wandkasten, drie dakramen en openslaande deuren naar het zonnige dakterras. De badkamer is modern en verzorgd afgewerkt met een inloopdouche, toilet en badkamermeubel. Dankzij het dakraam is er veel natuurlijk licht en ventilatie, naast de aanwezige mechanische ventilatie.
Bergzolder: via een vlizotrap op de overloop is de bergzolder bereikbaar.
Bijzonderheden:
• energielabel C;
• fraaie stadswoning met binnenplaats en zonnig dakterras;
• zeer sfeervol pand midden in het centrum van Zaltbommel;
• veel karakteristieke elementen zoals glas-in-lood ramen en hoog balkenplafond;
• voorzien van strakke schouw met houtkachel;
• in de woonkamer ligt een fraaie vloer met brede, eiken delen;
• moderne keuken & badkamer;
• 3 slaapkamers;
• instapklaar!
Kenmerken
Overdracht
| Status | Verkocht |
| Aanvaarding | In overleg |
Adres
| Straatnaam | Boschstraat |
| Huisnummer | 48 |
| Postcode | 5301 AG |
| Woonplaats | Zaltbommel |
| Land | Nederland |
Maten en ligging
| Liggingen | In centrum |
| Inhoud | 428 m3 |
| Gebruiksoppervlakte woonfunctie | 111 m2 |
| Gebruiksoppervlakte overige functies | 0 m2 |
| Perceel oppervlakte | 83 m2 |
Overig
| Bouwvorm | Bestaande bouw |
Bestemming
| Huidig gebruik | Woonruimte |
| Huidige bestemming | Woonruimte |
| Permanente bewoning | Ja |
| Recreatiewoning | Nee |
Bouwjaar
| In aanbouw | Nee |
Onderhoud
| Binnen | Goed |
| Buiten | Goed |
Diversen
| Isolatievormen | Muurisolatie, Grotendeels dubbelglas, HR glas |
| Dak | Pannen |
Installatie
| Soorten verwarming | CV ketel, Houtkachel |
| Soorten warm water | CV ketel |
Tuin
| Tuintypen | Plaats, Zonneterras |
| Kwaliteit | Normaal |
Hoofdtuin
| Type | Plaats |
| Achterom | Ja |
Garage
| Soorten | Geen garage |
Woonhuis
| Soort woning | Eengezinswoning |
Verdiepingen
| Aantal kamers | 4 |
| Aantal slaapkamers | 3 |
Downloads
Ligging
Voorzieningen
School
0.1 km
Bushalte
0.2 km
Tankstation
0.4 km
Supermarkt
0.6 km
Treinstation
1.1 km
Bibliotheek
1.5 km
Deze afstanden zijn berekend in vogelvlucht. De werkelijke routes en afstanden kunnen afwijken.
Interesse? Laat het ons weten
Neem contact op
Moolenaar Makelaardij staat bekend om de persoonlijke benadering en duidelijke afspraken die we met onze cliënten maken. We zijn niet snel tevreden en gaan tot het uiterste om optimaal aan uw woonwensen en -mogelijkheden te voldoen.