Peerakker 2
5325 XZ Well
Verkocht
132 m2 woonoppervlakte
240 m2 perceel
3 kamers
2004
Energielabel
ABeschrijving
Deze goed onderhouden tweekapper ligt op een fijne hoeklocatie en heeft een eigen oprit, een handige berging en een verzorgde achtertuin. Binnen vind je o.a. een moderne U-vormige keuken, een stijlvolle visgraatvloer en een nette badkamer. De woning beschikt over twee slaapkamers en een open zolderruimte, ideaal voor een werkplek of extra bergruimte. Een fijne, instapklare woning voor starters!
De woning is gebouwd in 2004 en is gelegen op een perceel van 240 m². De woonoppervlakte bedraagt ca. 132 m² en de woning heeft een inhoud van ca. 440 m³.
Peerakker 2 is gelegen in het landelijke dorp Well nabij de Afgedamde Maas. Het dorpje telt ca. 1000 inwoners en beschikt over een basisschool. Het naastliggende dorp Ammerzoden is binnen enkele minuten te bereiken en beschikt over een kleinschalig winkelcentrum met supermarkten, warme bakker, ambachtelijke slager, bloemist, scholen etc. Binnen 10 autominuten sta je in het gezellige vestingstadje Zaltbommel met tal van winkels, restaurants, terrasjes, NS-station, etc. De autosnelweg A2 richting ’s-Hertogenbosch – Utrecht is binnen 10 autominuten bereikbaar.
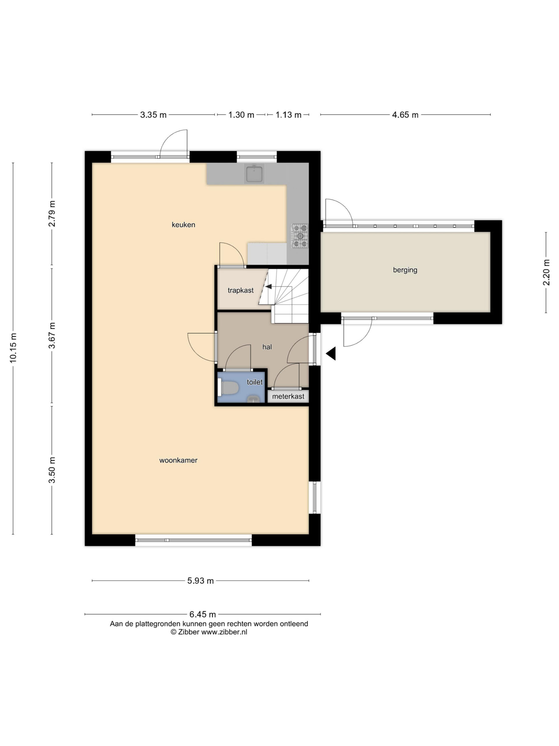
Indeling woning: via de entree kom je in een ruime hal met garderobe, meterkast, toiletruimte en een trapopgang naar de eerste verdieping. Vanuit de hal stap je de lichte en royale woonkamer binnen. De woonkamer bevindt zich aan de voorzijde, terwijl de moderne U-vormige keuken met diverse inbouwapparatuur aan de achterzijde is gesitueerd. Een loopdeur biedt directe toegang tot het terras en de achtertuin.
Eerste verdieping: op de eerste verdieping leidt de overloop naar twee ruime slaapkamers en een nette badkamer, voorzien van een inloopdouche, wandcloset en wastafel.
Tweede verdieping: een vaste trap brengt je naar de zolderverdieping, waar de cv-opstelling en aansluitingen voor de wasmachine en droger te vinden zijn. De ruime zolderkamer doet momenteel dienst als werkkamer en berging, maar biedt volop mogelijkheden om in te richten als extra slaap- of hobbykamer.
Kenmerken
Overdracht
| Status | Verkocht |
| Aanvaarding | In overleg |
Adres
| Straatnaam | Peerakker |
| Huisnummer | 2 |
| Postcode | 5325 XZ |
| Woonplaats | Well |
| Land | Nederland |
Maten en ligging
| Liggingen | Aan rustige weg, In woonwijk |
| Inhoud | 440 m3 |
| Gebruiksoppervlakte woonfunctie | 132 m2 |
| Gebruiksoppervlakte overige functies | 0 m2 |
| Perceel oppervlakte | 240 m2 |
Overig
| Bouwvorm | Bestaande bouw |
Bestemming
| Huidig gebruik | Woonruimte |
| Huidige bestemming | Woonruimte |
| Permanente bewoning | Ja |
| Recreatiewoning | Nee |
Bouwjaar
| Jaar omschrijving | 2004 |
| In aanbouw | Nee |
Onderhoud
| Binnen | Goed |
| Buiten | Goed |
Diversen
| Dak | Pannen |
Installatie
| Soorten warm water | CV ketel |
Tuin
| Kwaliteit | Verzorgd |
Hoofdtuin
| Type | Achtertuin |
| Achterom | Ja |
Garage
| Soorten | Geen garage |
Woonhuis
| Soort woning | Eengezinswoning |
Verdiepingen
| Aantal kamers | 3 |
| Aantal slaapkamers | 2 |
Downloads
Ligging
Voorzieningen
School
0.1 km
Bushalte
0.3 km
Tankstation
1.7 km
Bibliotheek
10.5 km
Treinstation
11 km
Supermarkt
16 km
Deze afstanden zijn berekend in vogelvlucht. De werkelijke routes en afstanden kunnen afwijken.
Interesse? Laat het ons weten
Neem contact op
Moolenaar Makelaardij staat bekend om de persoonlijke benadering en duidelijke afspraken die we met onze cliënten maken. We zijn niet snel tevreden en gaan tot het uiterste om optimaal aan uw woonwensen en -mogelijkheden te voldoen.