Hoprank 7
5251 CX Vlijmen
€ 889.000,- k.k.
178 m2 woonoppervlakte
484 m2 perceel
6 kamers
1992
Energielabel
ABeschrijving
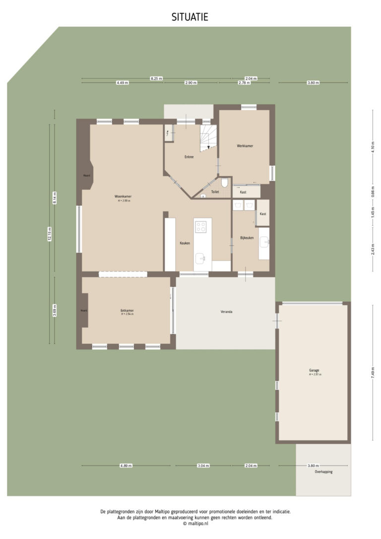
Aan Hoprank 7 wacht een fraaie villa met een warme, uitnodigende uitstraling. Deze goed onderhouden woning combineert comfort, ruimte en licht op een manier die direct thuiskomen voelt. Met een ruime garage, brede oprit voor meerdere auto’s en een verzorgde tuin rondom, biedt deze woning alles wat u zich maar kunt wensen. Bovendien is er een slaap-/werkkamer op de begane grond, waardoor gelijkvloers wonen ook tot de mogelijkheden behoort.
Bij binnenkomst voelt de lichte hal direct ruim en open aan. Vanuit hier heeft u toegang tot de sfeervolle woonkamer, de moderne keuken, de werkkamer en het toilet. De woonkamer is een heerlijke plek om te ontspannen: de gashaard zorgt voor gezelligheid en de twee schuifpuien laten een overvloed aan daglicht binnenstromen en verbinden het interieur naadloos met de tuin.
De halfopen keuken is een plaatje: een praktische opstelling, een kookeiland en een gezellige eetplek nodigen uit om hier urenlang te kokkerellen en te tafelen, terwijl u uitzicht heeft op de fraai aangelegde achtertuin. Aangrenzend vindt u de bijkeuken met wasmachineaansluitingen, extra bergruimte en een spoelbak optioneel eenvoudig om te bouwen tot een extra badkamer. De werkkamer aan de voorzijde is perfect voor thuiswerken, maar kan ook als extra slaapkamer worden gebruikt.
De achtertuin is een oase van rust en privacy. Meerdere terrassen bieden plek voor zon en schaduw, en voor ontspanning is er zelfs een jacuzzi aanwezig. De vrijstaande garage met elektrische kanteldeur is zowel vanuit de tuin als de oprit bereikbaar.
Op de eerste verdieping liggen vier comfortabele slaapkamers, een luxe badkamer en een apart tweede toilet. De badkamer is afgewerkt met marmer en voorzien van een ligbad met whirlpool, een douchecabine met massagestralen en een dubbele wastafel. De hoofdslaapkamer beschikt over een schuifpui naar het balkon en een brede kastenwand, terwijl de overige slaapkamers royaal zijn en veel daglicht ontvangen.
Een vlizotrap leidt naar de tweede verdieping, waar een ruime bergzolder extra opslagmogelijkheden biedt.
Deze woning is gebouwd met hoogwaardige materialen en met veel zorg onderhouden. Dankzij de slaapmogelijkheid op de begane grond, de ruime indeling en de rustige ligging is dit huis ideaal voor gezinnen én voor wie gelijkvloers wil wonen.
Hoprank 7 ligt aan de rand van Vlijmen, in een rustige, kindvriendelijke wijk met veel groen. Scholen, winkels en sportvoorzieningen liggen op korte afstand, en via de nabijgelegen A59 bereikt u ’s-Hertogenbosch of Waalwijk binnen enkele minuten.
Kenmerken
Overdracht
| VRAAGPRIJS | € 889.000,- k.k. |
| Status | Onder bod |
| Aanvaarding | In overleg |
Adres
| Straatnaam | Hoprank |
| Huisnummer | 7 |
| Postcode | 5251 CX |
| Woonplaats | Vlijmen |
| Land | Nederland |
Maten
| Inhoud | 702 m3 |
| Gebruiksoppervlakte woonfunctie | 178 m2 |
| Gebruiksoppervlakte overige functies | 17 m2 |
| Perceel oppervlakte | 484 m2 |
Overig
| Bouwvorm | Bestaande bouw |
Bestemming
| Huidig gebruik | Woonruimte |
| Huidige bestemming | Woonruimte |
| Permanente bewoning | Ja |
| Recreatiewoning | Nee |
Bouwjaar
| Jaar omschrijving | 1992 |
| In aanbouw | Nee |
Onderhoud
| Binnen | Goed |
| Buiten | Goed |
Diversen
| Isolatievormen | Dakisolatie, Muurisolatie, Vloerisolatie, HR glas |
| Dak | Pannen |
Installatie
| Soorten verwarming | CV ketel, Hete lucht verwarming, Gashaard |
| Soorten warm water | CV ketel |
Tuin
| Tuintypen | Achtertuin, Voortuin |
| Kwaliteit | Verzorgd |
Hoofdtuin
| Type | Achtertuin |
| Achterom | Ja |
Garage
| Soorten | Vrijstaand steen |
| Voorzieningen | Elektra, Elektrische deur |
| Capaciteit | 1 |
Woonhuis
| Soort woning | Villa |
Verdiepingen
| Aantal kamers | 6 |
| Aantal slaapkamers | 4 |
Downloads
Ligging
Voorzieningen
Bushalte
0.2 km
Bibliotheek
0.4 km
School
0.4 km
Tankstation
0.7 km
Supermarkt
1 km
Treinstation
17.4 km
Deze afstanden zijn berekend in vogelvlucht. De werkelijke routes en afstanden kunnen afwijken.
Interesse? Laat het ons weten
Neem contact op
Moolenaar Makelaardij staat bekend om de persoonlijke benadering en duidelijke afspraken die we met onze cliënten maken. We zijn niet snel tevreden en gaan tot het uiterste om optimaal aan uw woonwensen en -mogelijkheden te voldoen.