Delwijnsestraat 18
5315 AV Kerkwijk
Verkocht
138 m2 woonoppervlakte
660 m2 perceel
4 kamers
1924
Energielabel
DBeschrijving
Bent u op zoek naar een woning die rust, ruimte en sfeer ademt? Dan is deze vrijstaande woning met vrijstaande garage een absolute aanrader! Gelegen in een prachtige landelijke omgeving, biedt deze woning alles wat u zoekt: een warme uitstraling, moderne voorzieningen en een ruim perceel waar u volledig kunt genieten van de landelijke sfeer.
Bij aankomst valt direct de charme van deze woning op. De glas-in-loodramen, houten luiken en zichtbare houten balken dragen bij aan een authentieke en landelijke uitstraling. Dankzij de aangebouwde serre aan de achterzijde geniet u niet alleen van extra woonruimte, maar ook van een panoramisch uitzicht over de omliggende landerijen. De woning is praktisch ingedeeld en geschikt voor jong en oud dankzij de aanwezigheid van een badkamer op de begane grond en de mogelijkheid tot het creëren van een slaapkamer op de begane grond, waardoor de woning levensloopbestendig wordt. Dit maakt het de perfecte woning voor zowel gezinnen als senioren.
De woning is omstreeks 1924 gebouwd en is gelegen op een perceel van 660 m². De woonoppervlakte bedraagt ca. 138 m² en de inhoud ca. 524 m³.
De rondom gelegen tuin is een oase van rust, waar privacy en natuur hand in hand gaan. De combinatie van sierbestrating en moderne terrastegels zorgt voor een eigentijdse uitstraling en een verzorgde sfeer. Het ruime terras biedt een fantastische plek om te ontspannen en te genieten van het weidse uitzicht over de omliggende landerijen. Hier ervaart u de rust van het buitenleven in volledige privacy. De tuin is met zorg aangelegd en biedt naast sierbeplanting, kleurrijke plantenborders en groene struikgewassen ook praktische voorzieningen. De oprit met siergrind leidt naar de ruime garage en biedt parkeergelegenheid voor meerdere auto’s. Daarnaast is er aan de rechtervoorzijde van de woning een aparte parkeerplaats met ruimte voor twee auto’s, ideaal voor gasten of extra voertuigen.
Kerkwijk is een gemoedelijk dorp te midden van de Bommelerwaard en kenmerkt zich door vele authentieke en gerestaureerde woonboerderijen. Het dorp biedt diverse voorzieningen zoals onder andere een hippisch centrum, voetbalvereniging en een basisschool. Op 3 kilometer afstand bevindt zich een grote supermarkt. Daarnaast vindt u in het nabij gelegen Zaltbommel supermarkten, winkels, basisscholen en diverse scholen voor voortgezet onderwijs en allerlei culturele en maatschappelijke voorzieningen. Bovendien bent u in 15-20 autominuten in het centrum van ’s Hertogenbosch.
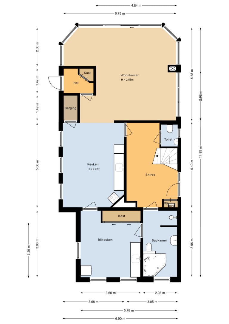
Indeling woning: de entree geeft toegang tot de ruime hal met garderobe, meterkast, toiletruimte en trapopgang naar de eerste verdieping. De hal geeft ook toegang aan de badkamer met ligbad, inloopdouche, toilet en badkamermeubel. Vanuit de hal stapt u de sfeervolle woonkeuken binnen voorzien van landelijke keukenunit met diverse inbouwapparatuur zoals een gasfornuis, afzuigkap, koelkast en vaatwasser. Aangrenzend bevindt zich een praktische bijkeuken met witgoedaansluitingen. Deze ruime kan tevens gebruikt worden als slaapkamer en biedt directe toegang tot de badkamer. De ruimtelijke en lichte living is aan de achterzijde gelegen en biedt dankzij de vele raampartijen een fraai weids uitzicht op de landerijen. Via een portaal met vaste kast is de entree aan de linkerzijde te bereiken.
Eerste verdieping: de overloop met vaste kastruimte geeft toegang tot 3 slaapkamers.
Deze woning combineert landelijke charme met modern wooncomfort. Bent u klaar om deze unieke plek zelf te ervaren? Neem contact op voor een bezichtiging en laat u verrassen door de sfeer, ruimte en rust!
Kenmerken
Overdracht
| Status | Verkocht |
| Aanvaarding | In overleg |
Adres
| Straatnaam | Delwijnsestraat |
| Huisnummer | 18 |
| Postcode | 5315 AV |
| Woonplaats | Kerkwijk |
| Land | Nederland |
Maten en ligging
| Liggingen | Vrij uitzicht, Landelijk gelegen |
| Inhoud | 524 m3 |
| Gebruiksoppervlakte woonfunctie | 138 m2 |
| Gebruiksoppervlakte overige functies | 0 m2 |
| Perceel oppervlakte | 660 m2 |
Overig
| Bouwvorm | Bestaande bouw |
Bestemming
| Huidig gebruik | Woonruimte |
| Huidige bestemming | Woonruimte |
| Permanente bewoning | Ja |
| Recreatiewoning | Nee |
Bouwjaar
| Jaar omschrijving | 1924 |
| In aanbouw | Nee |
Onderhoud
| Binnen | Goed |
| Buiten | Goed |
Diversen
| Isolatievormen | Vloerisolatie, Dubbelglas |
| Dak | Pannen |
Installatie
| Soorten verwarming | CV ketel, Vloerverwarming gedeeltelijk, Houtkachel |
| Soorten warm water | CV ketel |
Tuin
| Tuintypen | Tuin rondom |
| Kwaliteit | Verzorgd |
Hoofdtuin
| Type | Tuin rondom |
| Achterom | Ja |
Garage
| Soorten | Vrijstaand steen |
| Voorzieningen | Elektra |
| Capaciteit | 2 |
Woonhuis
| Soort woning | Eengezinswoning |
Verdiepingen
| Aantal kamers | 4 |
| Aantal slaapkamers | 3 |
Downloads
Ligging
Voorzieningen
Bushalte
0.2 km
School
0.4 km
Treinstation
11.1 km
Supermarkt
2.5 km
Tankstation
3.5 km
Bibliotheek
8.9 km
Deze afstanden zijn berekend in vogelvlucht. De werkelijke routes en afstanden kunnen afwijken.
Interesse? Laat het ons weten
Neem contact op
Moolenaar Makelaardij staat bekend om de persoonlijke benadering en duidelijke afspraken die we met onze cliënten maken. We zijn niet snel tevreden en gaan tot het uiterste om optimaal aan uw woonwensen en -mogelijkheden te voldoen.