Johannis van Rijswijkstr 8
5311 EB Gameren
€ 425.000,- k.k.
88 m2 woonoppervlakte
178 m2 perceel
4 kamers
1969
Energielabel
BBeschrijving
Ontdek deze verzorgde woning met een lichte living, moderne open keuken en praktische bijkeuken. Met 3 slaapkamers, een open zolder en een zonnige achtertuin op het zuiden biedt deze woning alles wat je zoekt. De woning is deels voorzien van vloerverwarming en beschikt over zonnepanelen, ideaal voor comfortabel en duurzaam wonen.
De tuin is stijlvol aangelegd met moderne terrastegels, siergrind, sierbestrating en diverse beplantingen, omheind door een houten schutting. Extra opslagruimte? De stenen berging met overkapping maakt het plaatje compleet. Een woning om zo in te trekken!
De woning is gebouwd in 1969 en heeft een woonoppervlakte van ca. 104 m² (incl. zolder en bijkeuken). De inhoud bedraagt ca. 374 m³ en het geheel is gelegen op een perceel van 178 m².
Het landelijke dorp Gameren is gelegen aan de rivier ‘de Waal’ en is o.a. voorzien van een supermarkt, ambachtelijke slager, warme bakker, basisschool en kinderdagverblijf en kent een actief verenigingsleven met o.a. een voetbal-, muziek- en oranjevereniging. Gameren is gelegen onder de rook van Zaltbommel waar alle voorzieningen op het gebied van scholen, winkels, restaurants en cultuur aanwezig zijn. De snelweg A2 en het NS station zijn snel en gemakkelijk bereikbaar.
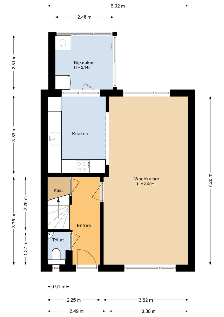
Indeling woning: de entree geeft toegang tot de hal met garderobe, meterkast, toiletruimte, trapkast en trapopgang naar de eerste verdieping. Vanuit de hal stap je de lichte doorzonwoonkamer binnen met aan de achterzijde de moderne open keuken die is voorzien van diverse inbouwapparatuur, waaronder een inductie koopplaat, afzuigkap, vaatwasser, combi-oven/ magnetron en koelkast. Aangrenzend bevindt zich een handige bijkeuken met aansluitingen voor de wasmachine.
Eerste verdieping: de overloop met vaste kast geeft toegang tot 3 slaapkamers en een nette badkamer met inloopdouche en wastafelmeubel.
Zolder: via een vaste trap is de open zolder bereikbaar. Hier bevindt zich de CV-installatie.
Pluspunten:
– goed onderhouden woonhuis;
– verzorgde tuin op het zuiden;
– voorzien van zonnepanelen;
– vloerverwarming in woonkamer, hal en toilet;
– instapklaar!
Kenmerken
Overdracht
| VRAAGPRIJS | € 425.000,- k.k. |
| Status | Beschikbaar |
| Aanvaarding | In overleg |
Adres
| Straatnaam | Johannis van Rijswijkstr |
| Huisnummer | 8 |
| Postcode | 5311 EB |
| Woonplaats | Gameren |
| Land | Nederland |
Maten en ligging
| Liggingen | Aan rustige weg, In woonwijk |
| Inhoud | 374 m3 |
| Gebruiksoppervlakte woonfunctie | 88 m2 |
| Gebruiksoppervlakte overige functies | 17 m2 |
| Perceel oppervlakte | 178 m2 |
Overig
| Bouwvorm | Bestaande bouw |
Bestemming
| Huidig gebruik | Woonruimte |
| Huidige bestemming | Woonruimte |
| Permanente bewoning | Ja |
| Recreatiewoning | Nee |
Bouwjaar
| Jaar omschrijving | 1969 |
| In aanbouw | Nee |
Onderhoud
| Binnen | Goed |
| Buiten | Goed |
Diversen
| Isolatievormen | Dakisolatie, Muurisolatie, Vloerisolatie, Grotendeels dubbelglas, HR glas |
Installatie
| Soorten verwarming | CV ketel, Vloerverwarming gedeeltelijk |
Tuin
| Tuintypen | Achtertuin, Voortuin |
| Kwaliteit | Verzorgd |
Hoofdtuin
| Type | Achtertuin |
| Achterom | Ja |
Garage
| Soorten | Geen garage |
Woonhuis
| Soort woning | Eengezinswoning |
Verdiepingen
| Aantal kamers | 4 |
| Aantal slaapkamers | 3 |
Downloads
Ligging
Voorzieningen
Bushalte
0.1 km
Supermarkt
0.3 km
School
0.3 km
Tankstation
0.9 km
Bibliotheek
1.8 km
Treinstation
4 km
Deze afstanden zijn berekend in vogelvlucht. De werkelijke routes en afstanden kunnen afwijken.
Interesse? Laat het ons weten
Neem contact op
Moolenaar Makelaardij staat bekend om de persoonlijke benadering en duidelijke afspraken die we met onze cliënten maken. We zijn niet snel tevreden en gaan tot het uiterste om optimaal aan uw woonwensen en -mogelijkheden te voldoen.