Zandweg 4a
5324 JN Ammerzoden
Verkocht
216 m2 woonoppervlakte
3.000 m2 perceel
4 kamers
2024
Energielabel
A++Beschrijving
Net buiten de dorpskern van Ammerzoden, omringd door uitgestrekte landerijen, staat deze in 2024 gebouwde, volledig gasloze woning. Een plek waar rust en ruimte samenkomen met eigentijdse luxe en een verfijnde afwerking.
De architectuur is geïnspireerd op de klassieke schuurwoning, maar uitgevoerd in een moderne en stijlvolle vorm. Het hoge zadeldak, de donkere gevelbekleding en de royale glaspartijen geven de woning een krachtig en tijdloos karakter dat prachtig opgaat in het landschap.
De woning is in 2024 gebouwd en in 2025 opgeleverd. De woonoppervlakte bedraagt ca. 216 m² en de inhoud ca. 836 m³. Het geheel is gelegen op een riant perceel van 3.000 m².
Binnen voel je direct de serene sfeer. De zorgvuldig gekozen materialen en neutrale tinten zorgen voor een rustige, luxe basis. Alles klopt — van de indeling tot de lichtinval. De living staat in halfopen verbinding met de eetkamer en woonkeuken, waardoor de ruimtes op een natuurlijke manier in elkaar overlopen. Het resultaat is een open leefomgeving met een warme uitstraling. De grote raampartijen halen het buitenleven naar binnen en bieden vanuit vrijwel iedere leefruimte een panoramisch uitzicht over het groen. De woonkeuken vormt het stijlvolle hart van de woning en staat via een royale schuifpui in directe verbinding met de veranda, een volwaardige buitenkamer waar je in alle seizoenen beschut en comfortabel kunt genieten. Daarnaast beschikt de woning over een inpandig bereikbare garage van circa 30 m², voorzien van vloerverwarming en uitgevoerd met dezelfde hoogwaardige vloerafwerking als de begane grond — een ruimte die daardoor naadloos aansluit bij het wooncomfort van het huis.
Op de verdieping bevindt zich de royale master bedroom met inloopkast en een luxe en-suite badkamer — een privéplek waar comfort en ontspanning centraal staan. Daarnaast zijn er twee volwaardige slaapkamers en een tweede badkamer, ideaal voor gezin of gasten.
De open zolderverdieping voegt een extra dimensie toe aan het huis. Een sfeervolle ruimte die zich perfect leent als werkplek, atelier, lounge of praktische bergruimte — flexibel in te vullen naar jouw woonwensen.
En dan is er nog een extra element: achter in de tuin bevindt zich een stijlvolle, vrijstaande buitenkamer met glazen schuifwanden. Een beschutte lounge- en eetplek met panoramisch uitzicht over de landerijen. Hier ervaar je het buitenleven in alle rust en privacy — van lange zomeravonden tot sfeervolle herfstdagen.
Het gemoedelijke dorp Ammerzoden ligt onder de rook van Den Bosch, midden in het Gelderse rivierengebied.
Het geheel is gelegen in een kindvriendelijke en rustige woonomgeving in het landelijke dorp Ammerzoden. Alle faciliteiten op het gebied van winkels, horeca en openbaar vervoer is slechts op enkele minuten loopafstand bereikbaar. Ook een eigen jachthaven, manege, basisschool, kinderopvang en diverse (sport)verenigingen zijn in Ammerzoden te vinden. De historische binnenstad van Zaltbommel bevindt zich op nog geen 10 minuten rijden, evenals het bourgondische Den Bosch. Ook de uitvalswegen A2 en de A59 zijn snel te bereiken.
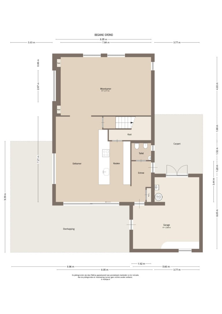
Begane grond: via de entree kom je binnen in een verzorgde ontvangsthal met meterkast en een modern afgewerkte toiletruimte, voorzien van een wandcloset en urinoir. Vanuit de halfopen entree ontvouwt zich direct het hart van de woning: de royale en sfeervolle woonkeuken.
De keuken is ontworpen met oog voor zowel esthetiek als functionaliteit. Een stijlvolle wandkast met geïntegreerde koffienis vormt een elegant geheel met het vrijstaande kook- en spoeleiland. Hier komen koken en samenzijn moeiteloos samen. De hoogwaardige inbouwapparatuur bestaat onder andere uit een extra groot Bertazzoni fornuis met inductiekookplaat met geïntegreerde afzuiging, (stoom)oven, koelkast, vriezer, vaatwasser en Quooker. Via de royale schuifpui loopt de woonkeuken naadloos over in de veranda — een verlengstuk van de leefruimte waar binnen en buiten op natuurlijke wijze in elkaar overvloeien. Aan de voorzijde van de woning bevindt zich de ruime woonkamer. Dankzij de grote raampartijen geniet je hier van een prettige lichtinval en vrij uitzicht over de omgeving. Een apart portaal met trapopgang zorgt voor een rustige overgang naar de eerste verdieping.
Eerste verdieping: de lichte overloop met vide versterkt het ruimtelijke gevoel en verbindt de verschillende vertrekken op harmonieuze wijze. De masterbedroom vormt een comfortabele privéruimte en beschikt over een inloopkast en een eigen badkamer. Daarnaast zijn er nog twee slaapkamers, waarvan één eveneens is voorzien van een inloopkast.
De tweede badkamer is modern en compleet uitgevoerd met een inloopdouche, wandcloset met douchefunctie, badkamermeubel en comfortabele vloerverwarming. Via de overloop bereik je tevens een praktische, separate ruimte met aansluitingen voor wasmachine en droger. Vanuit hier leidt de trap naar de zolderverdieping.
Zolder: de open zolderverdieping biedt een veelzijdige extra woonlaag. Een ideale ruimte voor bijvoorbeeld een rustige thuiswerkplek, hobbyruimte, fitnessruimte of aanvullende bergruimte — flexibel in te richten naar eigen wens.
Garage: de inpandige garage (ca. 30 m²) is uitgevoerd in dezelfde hoogwaardige afwerking als de begane grond en voorzien van vloerverwarming. Hierdoor voelt deze ruimte als een volwaardig verlengstuk van de woning in plaats van een traditionele garage. Naast de installatieruimte is hier tevens een praktische witgoedaansluiting en wasbak aanwezig. Dankzij het comfortniveau en de afwerking is de ruimte niet alleen geschikt voor het stallen van een auto, maar ook ideaal als hobbyruimte, werkruimte of extra opslag — volledig in lijn met de kwaliteit van de woning.
Dit is zo’n woning waar architectuur, comfort en omgeving moeiteloos samenkomen. Vrij wonen, met het dorp dichtbij. Modern en toekomstbestendig, maar vooral een plek waar je elke dag met plezier thuiskomt.
Highlights:
• bouwjaar 2024
• volledig gasloos
• vrijstaande schuurwoning;
• voorzien van waterontharder;
• landelijke ligging met vrij uitzicht;
• luxe woonkeuken met kookeiland;
• veranda met glazen schuiframen;
• master suite met inloopkast en badkamer;
• inpandige garage en carport;
• instapklaar en hoogwaardig afgewerkt!
Kenmerken
Overdracht
| Status | Verkocht |
| Aanvaarding | In overleg |
Adres
| Straatnaam | Zandweg |
| Huisnummer | 4 |
| Postcode | 5324 JN |
| Woonplaats | Ammerzoden |
| Land | Nederland |
Maten en ligging
| Liggingen | Buiten bebouwde kom, Landelijk gelegen |
| Inhoud | 836 m3 |
| Gebruiksoppervlakte woonfunctie | 216 m2 |
| Gebruiksoppervlakte overige functies | 29 m2 |
| Perceel oppervlakte | 3.000 m2 |
Overig
| Bouwvorm | Bestaande bouw |
Bestemming
| Huidig gebruik | Woonruimte |
| Huidige bestemming | Woonruimte |
| Permanente bewoning | Ja |
| Recreatiewoning | Nee |
Bouwjaar
| Jaar omschrijving | 2024 |
| In aanbouw | Nee |
Onderhoud
| Binnen | Uitstekend |
| Buiten | Uitstekend |
Diversen
| Isolatievormen | Volledig geïsoleerd |
| Dak | Pannen |
Installatie
| Soorten verwarming | Vloerverwarming gedeeltelijk, Warmtepomp |
| Soorten warm water | CV ketel, Elektrische boiler eigendom |
Tuin
| Tuintypen | Tuin rondom |
| Kwaliteit | Verzorgd |
Hoofdtuin
| Type | Tuin rondom |
| Achterom | Ja |
Garage
| Soorten | Aangebouwd hout, Inpandig, Carport |
| Voorzieningen | Verwarming, Elektra, Water |
| Capaciteit | 1 |
Woonhuis
| Soort woning | Landhuis |
Verdiepingen
| Aantal kamers | 4 |
| Aantal slaapkamers | 3 |
Downloads
Ligging
Voorzieningen
Bibliotheek
1.2 km
Bushalte
1.3 km
Supermarkt
1.4 km
School
2.3 km
Tankstation
2.8 km
Treinstation
9 km
Deze afstanden zijn berekend in vogelvlucht. De werkelijke routes en afstanden kunnen afwijken.
Interesse? Laat het ons weten
Neem contact op
Moolenaar Makelaardij staat bekend om de persoonlijke benadering en duidelijke afspraken die we met onze cliënten maken. We zijn niet snel tevreden en gaan tot het uiterste om optimaal aan uw woonwensen en -mogelijkheden te voldoen.