Koningin Wilhelminaweg 96
5301 GK Zaltbommel
Verhuurd
707 m2 perceel
1960
Energielabel
GBeschrijving
Te huur (ca. 150m2) multifunctionele kantoorruimte met eigen parkeerplaatsen, centraal gelegen aan de voet van het NS station van Zaltbommel, uitvalswegen naar de A2 binnen handbereik
(5 autominuten) extra parkeergelegenheid eventueel in overleg op achtergelegen terrein.
Het pand is gebouwd omstreeks 1960 en in 2005 geheel gerenoveerd.
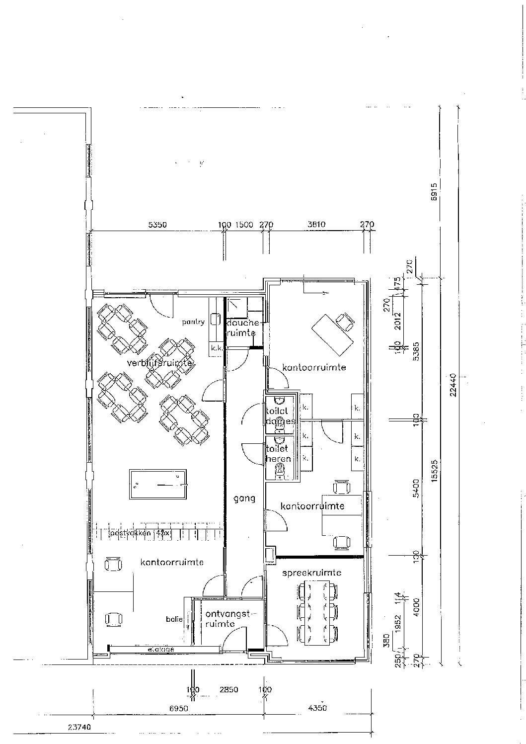
Indeling als volgt: entree/ontvangstruimte, toegang tot kantoorruimte aan linkerzijde, toegang tot spreekkamer aan de rechterzijde; tevens deur naar gang met daaraan gelegen overige ruimten.
Aan rechterzijde een spreekkamer van ca. 16 m2 , een kantoorruimte van ca. 22 m2. voorzien
van diverse vaste kasten, vanuit de gang toegang tot aparte dames- en herentoilet,
kantoorruimte van ca. 20 m2, gelegen aan achterzijde van gebouw, achter in de gang doucheruimte,
aan linkerzijde van de gang grote verblijfsruimte/showroom/vergaderruimte, kortom multifunctionele ruimte met pantry van ca. 53 m2.
Kenmerken
Overdracht
| Status | Verhuurd |
| Aanvaarding | In overleg |
Adres
| Straatnaam | Koningin Wilhelminaweg |
| Huisnummer | 96 |
| Postcode | 5301 GK |
| Woonplaats | Zaltbommel |
| Land | Nederland |
Maten en ligging
| Liggingen | Overig |
| Perceel | 707 m2 |
| Kantoorruimte | 150 m2 |
Overig
| Bouwvorm | Bestaande bouw |
Bouwjaar
| Bouwjaar | 1960 |
Onderhoud
| Binnen | Goed |
| Buiten | Goed |
Parkeer informatie
| Parkeer faciliteiten | vóór gebouw en evt. in overleg op achtergelegen terrein |
| Parkeerplaatsen | 0 |
Liggingen
Voorzieningen
| Bereikbaarheid bushalte | Op minder dan 500m |
| Bereikbaarheid ns station | Op minder dan 500m |
| Bereikbaarheid snelwegafrit | Op 1500m tot 2000m |
Interesse? Laat het ons weten
Neem contact op
Moolenaar Makelaardij staat bekend om de persoonlijke benadering en duidelijke afspraken die we met onze cliënten maken. We zijn niet snel tevreden en gaan tot het uiterste om optimaal aan uw woonwensen en -mogelijkheden te voldoen.