Waterstraat 11b
5301 AH Zaltbommel
Verhuurd
62 m2 woonoppervlakte
2 kamers
Energielabel
FBeschrijving
COMFORTABEL WONEN IN HARTJE ZALTBOMMEL
Nieuw in de verhuur bij Moolenaar Makelaardij:
Appartement Waterstraat 11 (B) (ca. 62 m2): € 1.350,- per maand (excl. € 200,- voorschot gas/ water/ licht)
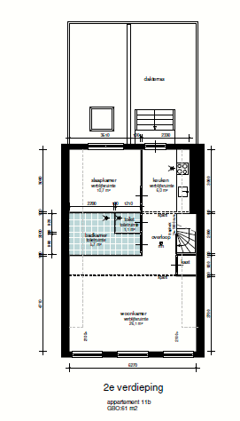
Gelegen op de tweede verdieping.
• Woonkamer aan de voorzijde;
• Keuken aan de achterzijde;
• Eén slaapkamer;
• Geschikt voor 1 persoon of een stelletje;
• Moderne badkamer met inloopdouche en wastafelmeubel;
• Dakterras toegankelijk vanuit de keuken;
• Geen lift aanwezig;
• Geen berging aanwezig;
• Officiële inschrijving gemeente Zaltbommel;
• Parkeren doormidden van aan te vragen parkeervergunning;
Dit appartement bevindt zich in de gezellige Waterstraat, te midden van winkels en horecagelegenheden en op steenworp afstand van de Waterpoort en de wandelpromenade langs de rivier ‘de Waal’.
Heb jij interesse in dit appartement? Stuur dan je gegevens naar info@moolenaarmakelaardij.nl of bel of app ons voor meer informatie op 0418-577540.
Kenmerken
Overdracht
| Status | Verhuurd |
| Aanvaarding | Per datum |
Adres
| Straatnaam | Waterstraat |
| Huisnummer | 11 |
| Postcode | 5301 AH |
| Woonplaats | Zaltbommel |
| Land | Nederland |
Maten en ligging
| Liggingen | In centrum |
| Inhoud | 200 m3 |
| Gebruiksoppervlakte woonfunctie | 62 m2 |
| Gebruiksoppervlakte overige functies | 0 m2 |
Overig
| Bouwvorm | Bestaande bouw |
Bestemming
| Huidig gebruik | Woonruimte |
| Huidige bestemming | Woonruimte |
| Permanente bewoning | Ja |
| Recreatiewoning | Nee |
Bouwjaar
| In aanbouw | Nee |
Onderhoud
| Binnen | Goed |
| Buiten | Goed |
Diversen
| Dak | Pannen |
Installatie
| Soorten warm water | CV ketel |
Tuin
| Kwaliteit | Verzorgd |
Hoofdtuin
| Type | Zonneterras |
| Achterom | Ja |
Garage
| Soorten | Geen garage |
Appartement
| Soort appartement | Bovenwoning |
Verdiepingen
| Aantal kamers | 2 |
| Aantal slaapkamers | 1 |
Ligging
Voorzieningen
Bushalte
0.2 km
Tankstation
0.3 km
School
0.4 km
Supermarkt
0.5 km
Treinstation
1.3 km
Bibliotheek
1.6 km
Deze afstanden zijn berekend in vogelvlucht. De werkelijke routes en afstanden kunnen afwijken.
Interesse? Laat het ons weten
Neem contact op
Moolenaar Makelaardij staat bekend om de persoonlijke benadering en duidelijke afspraken die we met onze cliënten maken. We zijn niet snel tevreden en gaan tot het uiterste om optimaal aan uw woonwensen en -mogelijkheden te voldoen.