Nonnenstraat 14
5301 BJ Zaltbommel
Verkocht
119 m2 woonoppervlakte
115 m2 perceel
3 kamers
Beschrijving
In de historische Nonnenstraat, onder de rook van het Stadskasteel en de stadswallen, vindt u op nummer 14 dit karakteristieke stadspand met verrassend veel ruimte en achtertuin. De woning is voorzien van een royale woonkamer, moderne keuken, nette badkamer en 2 slaapkamers en beschikt over sfeervolle details zoals de houten balken en ramen met roedeverdeling. Aan de achterzijde bevindt zich een knusse en sfeervolle patio met een ligging op het noorden.
Het gezellige centrum met winkels, terrassen en restaurantjes is op loopafstand bereikbaar.
De woning is omstreeks 1878 gebouwd, maar heeft in de loop der jaren diverse verbouwingen en vernieuwingen ondergaan. Het geheel is gelegen op een perceel van 115 m² en heeft een woonoppervlakte van ca. 119 m² en een inhoud van ca. 390 m³.
Zaltbommel beschikt over een ruim en divers aanbod aan winkels en horecagelegenheden en biedt daarnaast volop parkeermogelijkheden in de nabije omgeving. Tevens is de binnenstad van Zaltbommel uitstekend bereikbaar middels openbaar vervoer (NS-station op loopafstand en bushalte om de hoek) en binnen enkele minuten bevindt u zich op de A2. Op steenworp afstand vindt u een supermarkt, rivier de Waal met haar uiterwaarden en het stadspark.
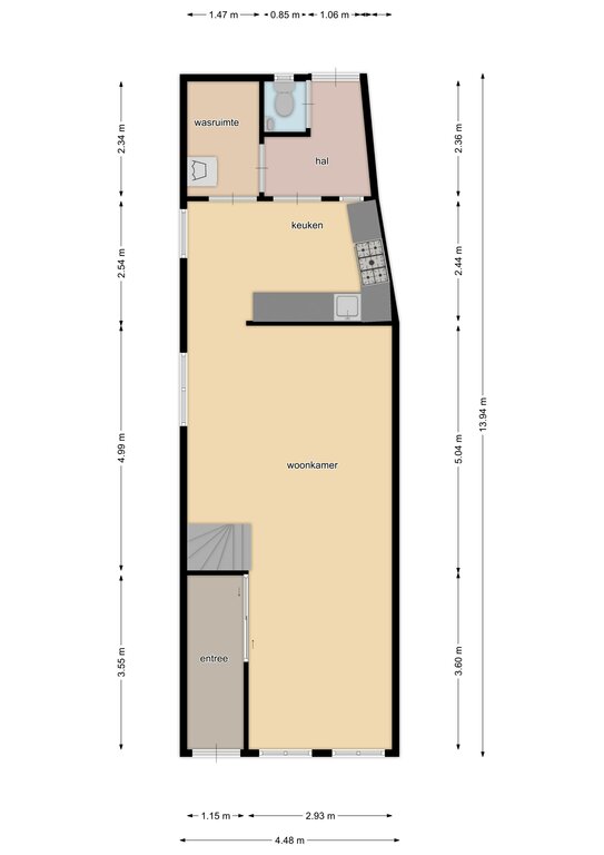
Indeling woonhuis: aan de voorzijde van de woning is de entree gesitueerd. In de hal bevindt zich de meterkast en via een schuifdeur heeft u toegang tot de royale woonkamer met halfopen keuken. De woonkamer is heerlijk licht dankzij de diverse grote raampartijen aan zowel de voor- als linkerzijde. De robuuste keuken is v.v. diverse inbouwapparatuur waaronder een Smeg fornuis met oven en 6 gaspitten, afzuigkap en vaatwasser. Aansluitend de keuken bevindt zich het portaaltje met de toiletruimte en washok met witgoedaansluiting en C.V.-installatie.
Eerste verdieping: royale open slaapkamer met vaste kasten.
Tweede verdieping: ruime overloop met slaapkamer aan de achterzijde en badkamer met ligbad/douche combinatie, wastafel met twee kranen en wandcloset.
Aanvullende informatie m.b.t. parkeren:
* in de straat is er voldoende (betaalde) parkeergelegenheid
* het is mogelijk een vergunning aan te vragen (via gemeente Zaltbommel)
* op ca. 50 meter afstand is er een gratis, openbare parkeerplaats
Kom snel een kijkje nemen en laat u verrassen door deze ruime stadswoning!
Kenmerken
Overdracht
| Status | Verkocht |
| Aanvaarding | In overleg |
Adres
| Straatnaam | Nonnenstraat |
| Huisnummer | 14 |
| Postcode | 5301 BJ |
| Woonplaats | Zaltbommel |
| Land | Nederland |
Maten en ligging
| Liggingen | In centrum |
| Inhoud | 390 m3 |
| Gebruiksoppervlakte woonfunctie | 119 m2 |
| Gebruiksoppervlakte overige functies | 114 m2 |
| Perceel oppervlakte | 115 m2 |
Overig
| Bouwvorm | Bestaande bouw |
Bestemming
| Huidig gebruik | Woonruimte |
| Huidige bestemming | Woonruimte |
| Permanente bewoning | Ja |
| Recreatiewoning | Nee |
Bouwjaar
| In aanbouw | Nee |
Onderhoud
| Binnen | Goed |
| Buiten | Goed |
Diversen
| Isolatievormen | Muurisolatie, Gedeeltelijk dubbelglas |
Installatie
| Soorten verwarming | CV ketel |
Tuin
| Tuintypen | Achtertuin |
| Kwaliteit | Normaal |
Hoofdtuin
| Type | Achtertuin |
| Achterom | Ja |
Garage
| Soorten | Geen garage |
Woonhuis
| Soort woning | Eengezinswoning |
Verdiepingen
| Aantal kamers | 3 |
| Aantal slaapkamers | 2 |
Downloads
Ligging
Voorzieningen
Bushalte
0.1 km
School
0.1 km
Tankstation
0.5 km
Supermarkt
0.6 km
Treinstation
1 km
Bibliotheek
1.5 km
Deze afstanden zijn berekend in vogelvlucht. De werkelijke routes en afstanden kunnen afwijken.
Interesse? Laat het ons weten
Neem contact op
Moolenaar Makelaardij staat bekend om de persoonlijke benadering en duidelijke afspraken die we met onze cliënten maken. We zijn niet snel tevreden en gaan tot het uiterste om optimaal aan uw woonwensen en -mogelijkheden te voldoen.