Terug naar bedrijfsaanbod

Ouwelsestraat 1a

5311 EG Gameren

Huurprijs: Prijs n.o.t.k.

1992

Beschrijving

TE HUUR

Ouwelsestraat 1 A-C te Gameren

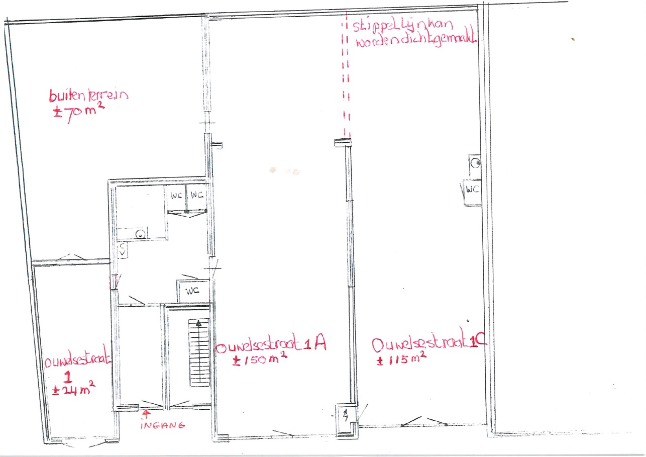
Aan de Ouwelsestraat in Gameren treft u dit kleinschalige winkelcomplex aan met een tweetal winkelruimtes of kantoorruimtes en buitenruimte.

Het betreft nummer 1 A-C. De winkel of kantoorruimten zijn gelegen aan een drukke straat welke in een directe verbinding staat met Zaltbommel. Daarnaast is het dorp Gameren zeer goed bereikbaar door o.a. de Van Heemstraweg (N322). Op ca. 5 autominuten bereikt u Rijksweg de A2 (Amsterdam-Maastricht).
* Nr. 1 A: ca. 150m²
* Nr. 1 C: ca. 110m²
* Frontbreedte ca. 5m
* Systeemplafond met lichtarmaturen
* V.v. pantry en toilet
* Tussenmeters per winkel aanwezig

Huurprijs nader over een te komen (exclusief BTW en nutsvoorzieningen)

Heeft u interesse dan infomeer naar de mogelijkheden of kom gerust langs.

info@moolenaarmakelaardij.nl
0418577540

Alle door ons verstrekte informatie is geheel vrijblijvend en is niet meer dan een uitnodiging om in onderhandeling te treden. Alle gegevens zijn met zorg samengesteld en uit ons inziens betrouwbare bron afkomstig. Ten aanzien van de juistheid ervan kunnen wij echter geen aansprakelijkheid aanvaarden. Eventuele bijgevoegde tekeningen zijn ter indicatie en kunnen afwijken van de werkelijke situatie. Gehele of gedeeltelijke overname van deze publicatie of het publiceren van gegevens hieruit is zonder onze schriftelijke toestemming verboden.

Op alle opdrachten zijn de Algemene voorwaarden NVM voor professionele opdrachtgevers van toepassing.
Een exemplaar van deze voorwaarden is op ons kantoor verkrijgbaar en kan op uw verzoek worden toegezonden.

Kenmerken

Overdracht

Status Beschikbaar
Aanvaarding Direct

Adres

Straatnaam Ouwelsestraat
Huisnummer 1
Postcode 5311 EG
Woonplaats Gameren
Land Nederland

Maten en ligging

Liggingen Wijkwinkelcentrum, In Woonwijk
Kantoorruimte 265 m2

Overig

Bouwvorm Bestaande bouw

Bouwjaar

Bouwjaar 1992

Onderhoud

Binnen Goed
Buiten Goed

Liggingen

Voorzieningen

Bereikbaarheid ns station Op 2000m tot 3000m
Bereikbaarheid snelwegafrit Op 1500m tot 2000m

Interesse? Laat het ons weten

Neem contact op

Moolenaar Makelaardij staat bekend om de persoonlijke benadering en duidelijke afspraken die we met onze cliënten maken. We zijn niet snel tevreden en gaan tot het uiterste om optimaal aan uw woonwensen en -mogelijkheden te voldoen.